CJP Architects
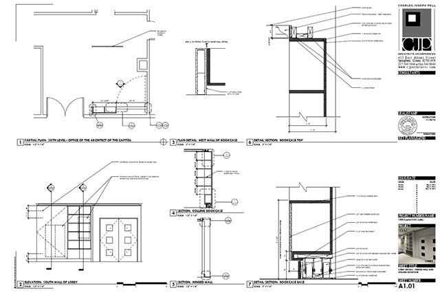
Office of the Architect of the Capitol Bookshelf

Springfield, Illinois

CJP Architects was engaged by The Office of the Architect of the Capitol (OAC) in Springfield, Illinois to provide alternatives to conceal existing electrical panels within their office lobby. Ultimately the concept featuring a hinged wall and rolling bookshelf was selected.

Details were created and a skilled cabinetry shop, WoodByrne Cabinetry in St. Louis, Missouri, was selected to execute the design. The project involved collaboration between CJP Architects, OAC, and a contract furniture dealer who provided interior design solutions and sold furniture and other features to OAC.
© 2015 CHARLES JOSEPH PELL ARCHITECTS INCORPORATED